请选择 型号/数量
当阳市荷载50kg减震器 吊顶减震器 阻尼减震器
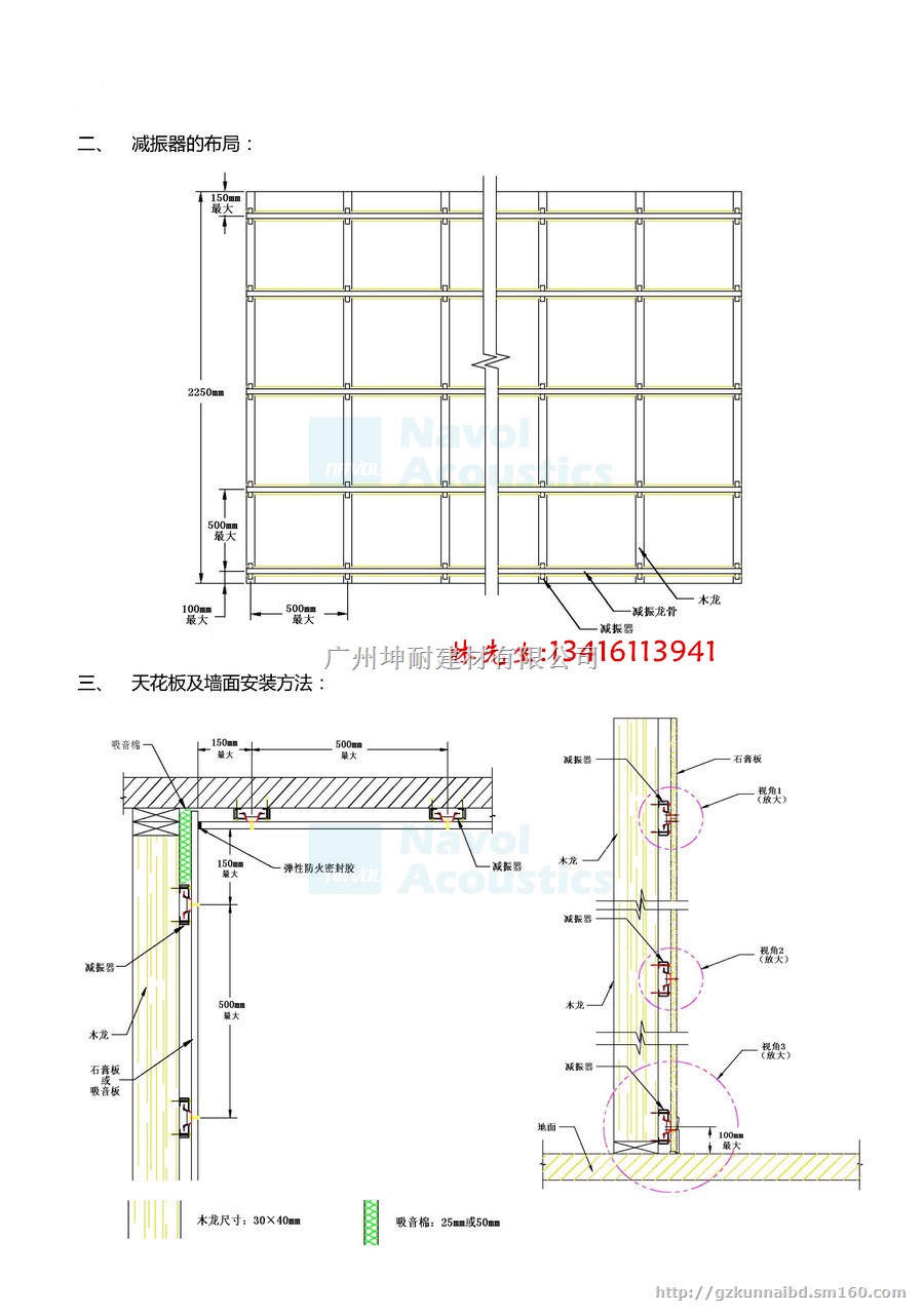
减震器介绍:
吊顶减振器主要用来抑制弹簧吸震后反弹时的震荡,虽然吸震弹簧可以过滤路面的震动,但弹簧自身还会有往复运动,而减振器就是用来抑制这种弹簧跳跃的。减振器太软,设备就会上下跳跃,减振器太硬就会带来太大的阻力,妨碍弹簧正常工作。在关于悬挂系统的改装过程中,硬的减振器要与硬的弹簧相搭配,设备一般采用较硬的减振器。与引震曲轴相接的装置,用来抗衡曲轴的扭转震动的现象。
坤耐吊顶减震器是通用性较强的橡胶减振器。亦称“万能垫”,具有3种不同直径、不同高度的圆柱凸台,上下两面交叉配置。可承受任意方向的载荷,吸收任意方向的振动。受横向压力时不会产生滑动。因而不必采取措施防止机器水平移动,省去庞大基础费用。此产品耐热、耐油,使用方便。
联系人:林先生;电话:13416113941;QQ:1579278981

吊顶减振器由金属弹簧与橡胶复合制成,金属表面经过电镀处理,能防止材料锈蚀。该产品采用特殊的工艺与材料使阻尼性能稳定,降低噪音隔振效果显著,产品具有荷载范围大、固有频率低、适应性强、使用寿命长、性能优越、结构简单、安装方便等特点,是一种多功能通用性隔振器。
减震器应用:
吊顶减振器通过顶棚吊架和悬吊天花板防止噪声和振动的传播,常用于ktv、酒吧、迪吧、播音室、录音棚等娱乐场所。还适用于各种水泵、管道机组连接处,也适用于其它需要减振降噪的管道系统。还可作为通风机,鼓风机,空调机及其它设备的隔振元件,以减少设备振动对外界的影响。


